cdmakelaardij.nl maakt gebruik van cookies.

We gebruiken cookies om de website naar behoren te laten werken, om functies voor social media te bieden en om onze website te analyseren. Dit gebeurt anoniem. U gaat akkoord met onze cookies als u onze website blijft gebruiken. Op onze website vindt u ook ons privacybeleid en cookieverklaring.

Nassaukade 18
Rijswijk

price € 750.000 k.k.
type Tussenwoning
livingSurface 134m²
bedrooms 4
bathrooms 1
rooms 5
auctionDate In overleg

Interesse?

We geven graag meer informatie of plannen een bezichting

Vestiging Voorburg


(070) 762 0090

Omschrijving

Wonen op een toplocatie aan de Nassaukade, aan de rand van het geliefde Leeuwendaal, met vrij uitzicht over vaarwater De Vliet!

*** English description below ***

Deze charmante 2-laags woning combineert een aantrekkelijke prijs met veel uitbreidingsmogelijkheden. Denk aan een aanbouw en/of een dakopbouw. Daarmee is dit niet alleen een fijne gezinswoning, maar ook een slimme investering voor de lange termijn.
De achtertuin is bijna 17 meter diep en biedt heerlijk veel zonuren. De woning beschikt over authentieke stijldetails, die zorgen voor karakter en sfeer.

Omgeving:
De woning ligt aan de rand van het geliefde Leeuwendaal. Dit is een charmante en groene wijk, ideaal voor gezinnen met (jonge) kinderen. Aan de voorzijde is er vrij uitzicht over het vaarwater De Vliet. De statige lanen, het monumentale karakter en de riante herenhuizen van begin vorige eeuw geven de buurt een rustige en sfeervolle uitstraling. Een actieve wijkvereniging zorgt daarnaast voor een hechte gemeenschap. Door het jaar heen worden er activiteiten georganiseerd voor jong en oud.

Alle dagelijkse voorzieningen liggen binnen handbereik. Kinderopvang, basisscholen, supermarkten en de gezellige winkels en horeca van Oud Rijswijk bevinden zich op loopafstand. Ook Voorburg, met onder andere de sfeervolle Herenstraat, ligt vlakbij. De bereikbaarheid is uitstekend. Tram 1 en 15, bus 23 en diverse treinstations liggen in de omgeving. Ook de uitvalswegen A4, A12 en A13 zijn snel bereikbaar. Daardoor zijn Den Haag, Delft en zelfs het strand eenvoudig te bereiken. Kortom: een prachtige, praktische en levendige woonomgeving waar gezinnen zich direct thuis zullen voelen.

Indeling:
De voortuin zorgt voor een prettige afstand tot de straat en versterkt het rustige, open gevoel.
Aan de achterzijde ligt de bijna 17 meter diepe achtertuin met volop zonuren en meer dan genoeg ruimte. Achterin staan een berging en een overkapping. Ideaal voor opslag en om beschut buiten te zitten.

Via de entree aan de voorkant komt u de woning binnen. De hal geeft toegang tot de meterkast, het toilet en de trap naar de eerste verdieping. Vanuit hier loop t u door naar de leefruimtes. Direct vallen de prettige plafondhoogte van 3 meter en de authentieke stijldetails op. Deze zorgen voor een warme en karaktervolle sfeer.

De begane grond bestaat uit een ruime woonkamer en suite. De originele schuifdeuren met vaste kasten scheiden de ruimtes van elkaar. Aan de voorzijde bevindt zich de zitkamer. De achterkamer is uitstekend geschikt als eetkamer en heeft zicht op én directe toegang tot de diepe achtertuin. De gesloten keuken ligt eveneens aan de achterzijde en biedt ook toegang tot de tuin. Deze indeling biedt bovendien mooie kansen om de leefruimte te vergroten. Denk bijvoorbeeld aan een aanbouw met een open woonkeuken.

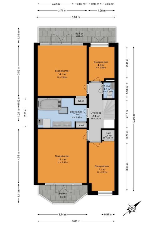
Op de eerste verdieping geeft de overloop toegang tot vier slaapkamers, een badkamer en een separaat toilet. Aan de voorzijde ligt een ruime slaapkamer met toegang tot het balkon. Daarnaast ligt aan de voorzijde een tweede, compactere kamer. Deze is goed te gebruiken als werk- of kinderkamer. De badkamer ligt centraal en is voorzien van een douche en dubbele wastafel. Aan de achterzijde bevinden zich nog twee slaapkamers, waarvan één eveneens toegang heeft tot een balkon.

De woning heeft een praktische indeling en veel leefruimte. Tegelijkertijd biedt zij interessante mogelijkheden om verder uit te breiden. Met een dakopbouw kan extra woonoppervlakte worden gecreëerd. Daarmee is deze woning niet alleen geschikt voor nu, maar ook toekomstbestendig en aantrekkelijk als investering op de lange termijn.

Extra informatie
- Eigen grond
- Bouwjaar 1925
- Dak vernieuwd in 2019
- Ca. 134 m2 woonoppervlakte met veel mogelijkheden om de oppervlakte te vergroten
- Ca. 195 m2 perceeloppervlakte
- Achtertuin van ca. 17 meter diep
- Ouderdom- en materialenclausule van toepassing
- Oplevering in overleg

*** Zie de foto's voor een beter beeld van de woning! ***

Interesse? Klik op ‘Vraag bezichtiging aan’ op Funda en plan direct uw bezichtiging.
Na uw aanvraag ontvangt u een e-mail met een link naar onze agenda, kies eenvoudig een moment dat u uitkomt.

Wij adviseren u een deskundige makelaar in te schakelen om u te begeleiden tijdens het aankoopproces.
Uw woning nog niet verkocht? Neem contact met ons op voor een gratis waardecheck, wij denken graag met u mee.


Living in a prime location on Nassaukade, on the edge of the beloved Leeuwendaal neighborhood, with unobstructed views over the waterway De Vliet!

This charming two-storey home combines an attractive price with plenty of extension possibilities. Think of a rear extension and/or a roof extension. This makes it not only a wonderful family home, but also a smart long-term investment.
The back garden is almost 17 metres deep and enjoys many sunny hours. The property also features authentic period details that add character and charm.

Surroundings:
The home is located on the edge of the popular Leeuwendaal neighborhood. This is a charming and green area, ideal for families with (young) children. At the front, there are unobstructed views over the waterway De Vliet. The stately avenues, historic character, and spacious early-20th-century townhouses give the area a calm and atmospheric feel. An active neighborhood association also helps create a close-knit community. Activities for both young and old are organized throughout the year.

All daily amenities are within easy reach. Childcare, primary schools, supermarkets, and the charming shops and restaurants of Oud Rijswijk are all within walking distance. Voorburg, including the attractive Herenstraat, is also nearby. Accessibility is excellent. Tram lines 1 and 15, bus 23, and several train stations are all close by. The A4, A12, and A13 motorways are also quickly accessible. This means The Hague, Delft, and even the beach are easy to reach. In short: a beautiful, practical, and lively residential area where families will immediately feel at home.

Layout:
The front garden creates a pleasant distance from the street and enhances the peaceful, open feel.

At the rear, you will find the nearly 17-metre-deep back garden, offering plenty of sunshine and more than enough space. At the back of the garden there is a storage shed and a covered seating area, ideal for storage and sheltered outdoor living.

You enter the property through the front entrance. The hallway provides access to the meter cupboard, the toilet, and the staircase to the first floor. From here, you continue to the living areas. The pleasant ceiling height of 3 metres and the authentic period details immediately stand out, creating a warm and characterful atmosphere.

The ground floor consists of a spacious en-suite living room. The original sliding doors with built-in cupboards separate the rooms. At the front is the sitting room. The rear room is perfectly suited as a dining room and enjoys views of, as well as direct access to, the deep back garden. The separate kitchen is also located at the rear and likewise provides access to the garden. This layout also offers excellent opportunities to enlarge the living space, for example by adding an extension with an open-plan kitchen.

On the first floor, the landing provides access to four bedrooms, a bathroom, and a separate toilet. At the front is a spacious bedroom with access to the balcony. Also at the front is a second, more compact room, ideal as a study or children’s bedroom. The bathroom is centrally located and fitted with a shower and two sinks. At the rear are two further bedrooms, one of which also has access to a balcony.

The property has a practical layout and plenty of living space. At the same time, it offers interesting opportunities for further expansion. A roof extension could create additional living area. This makes the property suitable not only for today, but also future-proof and attractive as a long-term investment.

Additional information:
- Freehold land
- Built in 1925
- Roof renewed in 2019
- Approx. 134 m2 of living space, with many possibilities to enlarge the surface area
- Approx. 195 m2 plot size
- Back garden approx. 17 metres deep
- Ouderdom- en materialenclausule applicable
- Delivery negotiable

Interested? Click ‘Request a viewing’ on Funda and schedule your viewing directly.
After submitting your request, you will receive an email with a link to our calendar, where you can easily choose a time that suits you.

We advise you to engage a qualified real estate agent to guide you through the purchasing process.
Haven’t sold your current home yet? Contact us for a free valuation check, we’d be happy to think along with you.

Deze informatie is met de nodige zorgvuldigheid samengesteld. Geen enkele aansprakelijkheid wordt aanvaard voor enige onvolledigheid, onjuistheid of tussentijdse wijzigingen, dan wel de gevolgen daarvan.

Kenmerken

Aanvaarding

Prijs
€ 750.000 k.k.
Status
Beschikbaar
Oplevering
In overleg

Bouw

Soort woonhuis
Herenhuis, Tussenwoning
Soort bouw
Bestaande bouw
Bouwjaar
1925
Onderhoud binnen
Uitstekend
Onderhoud buiten
Goed

Oppervlakten en inhoud

Woonoppervlakte
134m²
Perceeloppervlakte
195m²
Oppervlakte woonkamer
45m²
Inhoud
512m³

Indeling

Aantal kamers
5
Aantal slaapkamers
4
Aantal badkamers
1
Aantal verdiepingen
2
Voorzieningen
Mechanische ventilatie, TV-Kabel, Glasvezel kabel, Natuurlijke ventilatie

Energie

Energielabel
D
Isolatie
Dubbel glas
Warm water
C.V.-ketel
Verwarming
C.V.-ketel, Gashaard
Ketel
(Eigendom)

Buitenruimte

Ligging
Aan het water, Aan rustige weg, In woonwijk, Vrij uitzicht
Tuin
Achtertuin, Voortuin
Achtertuin
Noordwest, 107m², 636×1678cm
Schuur
Vrijstaand hout

Locatie

[ { "address": "Nassaukade 18", "zipCode": "2281 XB", "city": "Rijswijk", "lat": 52.0534275, "lng": 4.3431789, "heading": 0, "pitch": 0 } ]

Documenten

Plattegronden

Nassaukade 18, Rijswijk floorplan-0
Nassaukade 18, Rijswijk floorplan-1
Nassaukade 18, Rijswijk floorplan-2
Nassaukade 18, Rijswijk floorplan-3
Nassaukade 18, Rijswijk floorplan-4
Nassaukade 18, Rijswijk floorplan-5
Nassaukade 18, Rijswijk floorplan-6

Bekijk verloop van de zon

Uw browser ondersteunt geen WebGL

Interesse in deze woning

Vul uw gegevens in en wij nemen zo snel mogelijk contact met u op voor een afspraak of meer informatie.

Uw bericht is naar ons verzonden. Wij nemen zo snel mogelijk contact met u op.

Er is iets mis gegaan met het versturen van het formulier.
Controleer of u alle velden (goed) heeft ingevoerd en probeer het nog een keer.

recaptcha
reCAPTCHA
PrivacyTerms

Verkoop door vestiging Voorburg
Bel (070) 762 0090

+

Huis verkopen?

Doe de gratis verkooptest!

Direct beginnen