cdmakelaardij.nl maakt gebruik van cookies.

We gebruiken cookies om de website naar behoren te laten werken, om functies voor social media te bieden en om onze website te analyseren. Dit gebeurt anoniem. U gaat akkoord met onze cookies als u onze website blijft gebruiken. Op onze website vindt u ook ons privacybeleid en cookieverklaring.

Gerstkamp 272
Den Haag

price € 259.500 k.k.
type Penthouse
livingSurface 44m²
bedrooms 1
bathrooms 1
rooms 2
auctionDate In overleg

Interesse?

We geven graag meer informatie of plannen een bezichting

Vestiging Voorburg


(070) 762 0090

Omschrijving

Wat een schitterend penthouse! Volledig instapklaar, hoogwaardig afgewerkt en meteen genieten.

Op de bovenste woonlaag van dit complex vindt u een oase van licht en rust. Door de hoge ligging woont u hier letterlijk boven de stad, met een adembenemend panoramisch uitzicht over de skyline van Den Haag en het omliggende groen.

In 2022 is het appartement volledig en professioneel gemoderniseerd met gebruik van hoogwaardige materialen. De renovatie is vakkundig uitgevoerd (facturen ter inzage beschikbaar), waardoor u verzekerd bent van kwaliteit. Dankzij de slimme indeling voelt de leefruimte verrassend ruim aan.

Indeling:
Nette afgesloten hoofdentree met bellen- en brievenbussentableau. Lift naar de 11e etage, waarna twee brede trappen u naar de bovenste woonlaag leiden.
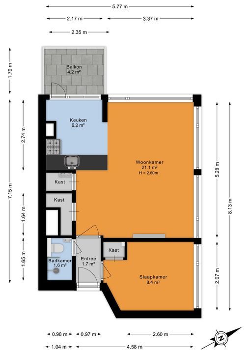
Entree appartement: hal met toegang tot de vertrekken. Sfeervolle, lichte woonkamer (ca. 5,3 x 3,9 m) met grote raampartijen en panoramisch uitzicht, overlopend in een moderne open keuken (ca. 2,7 x 2,3 m) met voldoende werkruimte en voorzien van div. inbouwapparatuur. Toegang tot het zonnige balkon op het zuidwesten. Rustige slaapkamer (ca. 2,7 x 3,1 m) met tegenover gelegen moderne badkamer. Meerdere praktische inbouwkasten met wma. In de onderbouw beschikt het appartement over een eigen afsluitbare berging (ca. 5 m2).


Pluspunten:

EIGEN GROND (dus geen erfpacht).

Privacy & Rust: Geen bovenburen en een heerlijk vrije ligging.

Turn-key: Professioneel gemoderniseerd (2022) en direct te betrekken.

Omgeving:
De locatie combineert het beste van twee werelden: de natuur dichtbij en de stad aan uw voeten. Voor ontspanning wandelt u zo naar het Haagse Bos of Landgoed Marlot. Met de fiets bent u in korte tijd op het strand van Scheveningen of Wassenaar. Voor de dagelijkse boodschappen liggen winkelcentrum ’t Kleine Loo en de gezellige Theresiastraat om de hoek. De bereikbaarheid is uitstekend met stations Mariahoeve en Laan van NOI nabij, en een snelle ontsluiting naar de A12, A4 en A44 via de Sijtwendetunnel.

Extra informatie:

- EIGEN GROND (geen erfpacht!)
- Woonoppervlakte ca. 43 m2
- Volledig professioneel gemoderniseerd in 2022
- Gratis parkeren op eigen terrein en in de directe omgeving
- Energielabel F
- Actieve VVE, VVE bijdrage € 167,61 inclusief € 38,- voorschot stookkosten.
- Oplevering in overleg, kan snel.

Kortom: een instapklaar en hooggelegen stadsverblijf met veel rust en privacy. U bent van harte welkom om de woning en het indrukwekkende uitzicht zelf te komen ervaren.

Kenmerken

Aanvaarding

Prijs
€ 259.500 k.k.
Bijdrage VVE
€ 168
Status
Verkocht
Oplevering
In overleg

Bouw

Soort appartement
Penthouse, Appartement
Woonlaag
12
Soort bouw
Bestaande bouw
Bouwjaar
1965
Onderhoud binnen
Uitstekend
Onderhoud buiten
Goed

Oppervlakten en inhoud

Woonoppervlakte
44m²
Oppervlakte woonkamer
24m²
Inhoud
146m³

Indeling

Aantal kamers
2
Aantal slaapkamers
1
Aantal badkamers
1
Aantal verdiepingen
1

Energie

Energielabel
F
Isolatie
Dubbel glas, Gedeeltelijk dubbel glas
Warm water
Elektrische boiler eigendom
Verwarming
Blokverwarming

Buitenruimte

Ligging
Aan rustige weg, In woonwijk, Vrij uitzicht
Balkon
Ja
Tuin
Zonneterras
Schuur
Inpandig

Locatie

[ { "address": "Gerstkamp 272", "zipCode": "2592 CX", "city": "Den Haag", "lat": 52.0873555, "lng": 4.3546623, "heading": 0, "pitch": 0 } ]

Plattegronden

Gerstkamp 272, Den Haag floorplan-0
Gerstkamp 272, Den Haag floorplan-1

Bekijk verloop van de zon

Uw browser ondersteunt geen WebGL

Interesse in deze woning

Vul uw gegevens in en wij nemen zo snel mogelijk contact met u op voor een afspraak of meer informatie.

Uw bericht is naar ons verzonden. Wij nemen zo snel mogelijk contact met u op.

Er is iets mis gegaan met het versturen van het formulier.
Controleer of u alle velden (goed) heeft ingevoerd en probeer het nog een keer.

recaptcha
reCAPTCHA
PrivacyTerms

Verkoop door vestiging Voorburg
Bel (070) 762 0090

+

Huis verkopen?

Doe de gratis verkooptest!

Direct beginnen