cdmakelaardij.nl maakt gebruik van cookies.

We gebruiken cookies om de website naar behoren te laten werken, om functies voor social media te bieden en om onze website te analyseren. Dit gebeurt anoniem. U gaat akkoord met onze cookies als u onze website blijft gebruiken. Op onze website vindt u ook ons privacybeleid en cookieverklaring.

Jan van Riebeekstraat 3
Den Haag

price € 550.000 k.k.
type Hoekwoning
livingSurface 110m²
bedrooms 4
bathrooms 1
rooms 5
auctionDate In overleg

Interesse?

We geven graag meer informatie of plannen een bezichting

Vestiging Voorburg


(070) 762 0090

Omschrijving

Wonen met ruimte, licht en een royaal dakterras in het Beatrixkwartier!

In het populaire Beatrixkwartier, op korte afstand van het centrum van Den Haag, ligt deze goed onderhouden hoekwoning uit 1979. De woning combineert een praktische indeling met veel leefruimte, fijne buitenruimtes en een zeer centrale ligging nabij openbaar vervoer, winkels en uitvalswegen (A4, A12 en A13).

Dankzij de hoekligging heeft u slechts aan een zijde buren. De woning is bovendien verduurzaamd en volledig voorzien van kunststof kozijnen met dubbel glas, geïsoleerde spouwmuren en vloerisolatie, wat bijdraagt aan comfortabel wonen en lagere energielasten.

Indeling:

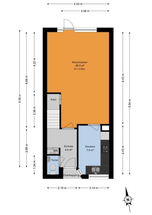
Begane grond:
Entree met hal, meterkast en toiletruimte. De lichte keuken is aan de voorzijde gelegen en heeft een oppervlakte van ca. 7,0 m² en is voorzien van diverse inbouw apparatuur. De tuingerichte woonkamer is royaal opgezet, meet circa 26,0 m², heeft een prettige plafondhoogte van ca. 2,62 m en biedt via de achterdeur direct toegang tot de tuin. De tuin heeft een schuur en een achterom.

Eerste verdieping:
Overloop met toegang tot drie slaapkamers van respectievelijk ca. 8,8 m², 8,9 m² (gelegen aan de achterzijde) en de hoofdslaapkamer aan de voorzijde van ca. 11,3 m². De badkamer is functioneel ingericht met een douche, wastafelmeubel en een handdoekradiator en meet circa 2,7 m².
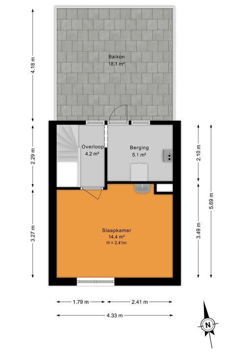
Tweede verdieping
Ruime vierde slaapkamer van ca. 14,4 m²aan de voorzijde, een aparte berging/wasruimte van ca. 5,1 m² en toegang tot het royale dakterras van ca. 18,1 m² – een absolute meerwaarde en een heerlijke plek om buiten te genieten.

Buitenruimte:
De woning beschikt over meerdere buitenruimtes, waaronder:
• een achtertuin met vrijstaande berging
• een royaal dakterras op de tweede verdieping

Ligging:
Gelegen op een uitstekende locatie in het Beatrixkwartier: nabij NS-station Laan van NOI, tram- en busverbindingen, winkels, scholen en internationale organisaties. Het centrum van Den Haag is snel bereikbaar per fiets of openbaar vervoer.

Bijzonderheden:
• Hoekwoning, bouwjaar 1979
• Gebruiksoppervlakte wonen ca. 110 m²
• Bruto inhoud woning ca. 383 m³
• Gebouwgebonden buitenruimte (dakterras) ca. 19 m²
• Externe bergruimte (schuur) ca. 5 m²
• Volledig voorzien van kunststof kozijnen met dubbel glas
• Spouwmuurisolatie en vloerisolatie aanwezig
• Plattegronden en maatvoering indicatief; hieraan kunnen geen rechten worden ontleend
• Eigenaar – geen bewoner clausule van toepassing / Ouderdom- en materialen clausule van toepassing
• Erfpacht en beheerskosten eeuwigdurend afgekocht

Kenmerken

Aanvaarding

Prijs
€ 550.000 k.k.
Status
Beschikbaar
Oplevering
In overleg

Bouw

Soort woonhuis
Eengezinswoning, Hoekwoning
Soort bouw
Bestaande bouw
Bouwjaar
1979
Onderhoud binnen
Goed
Onderhoud buiten
Goed

Oppervlakten en inhoud

Woonoppervlakte
110m²
Perceeloppervlakte
88m²
Oppervlakte woonkamer
28m²
Inhoud
383m³

Indeling

Aantal kamers
5
Aantal slaapkamers
4
Aantal badkamers
1
Aantal verdiepingen
3
Voorzieningen
Mechanische ventilatie, TV-Kabel

Energie

Energielabel
B
Isolatie
Muurisolatie, Vloerisolatie, Dubbel glas
Warm water
C.V.-ketel, Zonneboiler
Verwarming
C.V.-ketel
Ketel
(Combi-ketel, Eigendom)

Buitenruimte

Ligging
In woonwijk
Tuin
Achtertuin
Achtertuin
Noordoost, 50m², 493×1011cm
Schuur
Vrijstaand hout

Locatie

[ { "address": "Jan van Riebeekstraat 3", "zipCode": "2595 WT", "city": "Den Haag", "lat": 52.0790315, "lng": 4.3321805, "heading": 0, "pitch": 0 } ]

Plattegronden

Jan van Riebeekstraat 3, Den Haag floorplan-0
Jan van Riebeekstraat 3, Den Haag floorplan-1
Jan van Riebeekstraat 3, Den Haag floorplan-2
Jan van Riebeekstraat 3, Den Haag floorplan-3
Jan van Riebeekstraat 3, Den Haag floorplan-4

Bekijk verloop van de zon

Uw browser ondersteunt geen WebGL

Interesse in deze woning

Vul uw gegevens in en wij nemen zo snel mogelijk contact met u op voor een afspraak of meer informatie.

Uw bericht is naar ons verzonden. Wij nemen zo snel mogelijk contact met u op.

Er is iets mis gegaan met het versturen van het formulier.
Controleer of u alle velden (goed) heeft ingevoerd en probeer het nog een keer.

recaptcha
reCAPTCHA
PrivacyTerms

Verkoop door vestiging Voorburg
Bel (070) 762 0090

+

Huis verkopen?

Doe de gratis verkooptest!

Direct beginnen