cdmakelaardij.nl maakt gebruik van cookies.

We gebruiken cookies om de website naar behoren te laten werken, om functies voor social media te bieden en om onze website te analyseren. Dit gebeurt anoniem. U gaat akkoord met onze cookies als u onze website blijft gebruiken. Op onze website vindt u ook ons privacybeleid en cookieverklaring.

De Sillestraat 157
Den Haag

price € 325.000 k.k.
type Portiekwoning
livingSurface 77m²
bedrooms 2
bathrooms 1
rooms 4
auctionDate In overleg

Interesse?

We geven graag meer informatie of plannen een bezichting

Vestiging Voorburg


(070) 762 0090

Omschrijving

Hoekappartement met licht, karakter en potentie.

Dit 3-kamer hoekappartement van circa 77 m² in het geliefde Bezuidenhout combineert licht, karakter en een uitstekende ligging in één van de meest gewilde wijken van Den Haag.

Gelegen op de eerste etage van een jaren ’30 portiekwoning valt dit appartement direct op door de hoekligging, de grote hoeveelheid daglicht en de aanwezigheid van originele details zoals glas-in-lood bovenlichten.

De woning biedt een solide basis voor wie het appartement wil moderniseren en volledig naar eigen smaak wil inrichten. Geen kant-en-klare woning, maar een kans om een karaktervol jaren ’30 appartement te creëren met toekomstpotentie.

Bezuidenhout is een populaire wijk dankzij de combinatie van rust, groen en stedelijk gemak. Winkels en horeca aan de Theresiastraat liggen op loopafstand, net als het Haagse Bos. Openbaar vervoer is uitstekend met nabijgelegen stations zoals Station Laan van NOI en Den Haag Centraal Station. Via de uitvalswegen ben je bovendien snel onderweg richting de A12, A4 en A44.

Dit is een woning met karakter en mogelijkheden voor wie ziet wat hier kan ontstaan.

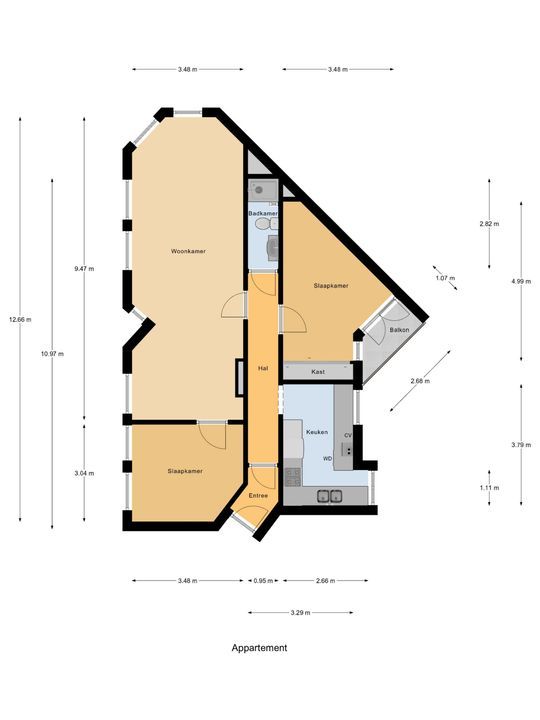
Indeling
Portiek en entree
Open portiek naar de eerste verdieping met toegang tot de woning.

Woonkamer en suite – licht en karaktervol
De woonkamer en eetkamer vormen een ruime leefruimte dankzij de hoekligging en de grote raampartijen met glas-in-lood bovenlichten. Het plafond heeft originele lijsten en de parketvloer vormt een sterke basis voor verdere inrichting. De ruimte heeft een levendige uitstraling en een open gevoel.

Keuken
De praktische keuken in L-opstelling bevindt zich aan de achterzijde. Voorzien van basisapparatuur, met voldoende werk- en kastruimte en toegang tot het balkon.

Balkon
Klein maar bruikbaar balkon aan de achterzijde, ideaal voor een moment buiten.

Slaapkamers
De woning beschikt over twee ruime slaapkamers. De hoofdslaapkamer ligt aan de rustige achterzijde. De tweede slaapkamer aan de voorzijde heeft grote ramen, glas-in-looddetails en een vaste schuifdeurkast.

Badkamer en toilet
Nette badkamer met douche, wastafel en toilet.

Kenmerken:
- Woonoppervlakte: ca. 77 m²
- Balkon: ca. 2 m²
- Jaren ’30 portiekwoning met karakter
- Hoekappartement met uitzonderlijk veel licht
- Originele details zoals glas-in-lood
- Gedeeltelijk dubbele beglazing
- Kozijnen deels hout en deels aluminium
- CV-combiketel Remeha Avanta 2020
- Actieve en gezonde VvE, bijdrage € 50,- per maand
- 1/3 aandeel in de VvE
- Collectieve opstalverzekering
- Locatie – Bezuidenhout

Toplocatie in een van de meest populaire wijken van Den Haag. De gezellige Theresiastraat ligt op loopafstand, evenals het Haagse Bos. Openbaar vervoer en uitvalswegen zijn uitstekend bereikbaar.

Zie jij de mogelijkheden van deze woning? Dan nodigen wij je uit om de stap te zetten en een bezichtiging aan te vragen.

Corner Apartment with Light, Character and Potentia.l

This 3-room corner apartment of approximately 77 m² in the popular Bezuidenhout district combines light, character, and an excellent location in one of The Hague’s most sought-after neighborhoods.

Situated on the first floor of a 1930s apartment building, this property immediately stands out due to its corner position, the abundance of natural light, and original details such as stained-glass transom windows.

The apartment offers a solid foundation for buyers who wish to modernize the property and design it entirely to their own taste. It is not a turnkey home, but rather an opportunity to create a characterful 1930s apartment with strong future potential.

Bezuidenhout is a highly desirable area thanks to its combination of tranquility, greenery, and urban convenience. Shops and restaurants on Theresiastraat are within walking distance, as is the Haagse Bos park. Public transport connections are excellent, with nearby stations including Laan van NOI and The Hague Central Station. Major roads provide quick access to the A12, A4, and A44 highways.

This is a home with character and possibilities for those who can see what it can become.

Layout

Entrance
Open communal entrance leading to the first floor with access to the apartment.

Living Room and Dining Room – Bright and Characterful
The living and dining rooms form a spacious living area thanks to the corner position and large windows with stained-glass transoms. The ceiling features original decorative moldings, and the parquet floor provides a strong base for further interior design. The space has a lively atmosphere and an open feel.

Kitchen
The practical L-shaped kitchen is located at the rear of the apartment. It is equipped with basic appliances, offers sufficient work and storage space, and provides access to the balcony.

Balcony
A small but usable balcony at the rear, ideal for enjoying a moment outdoors.

Bedrooms
The apartment has two generously sized bedrooms. The main bedroom is located at the quiet rear side. The second bedroom at the front features large windows, stained-glass details, and a built-in sliding-door wardrobe.

Bathroom and Toilet
Neat bathroom equipped with a shower, washbasin, and toilet.

Features:
Living area: approx. 77 m²
- Balcony: approx. 2 m²
- Characterful 1930s apartment building
- Corner apartment with exceptional natural light
- Original details such as stained-glass windows
- Partially double glazing
- Window frames partly wood and partly aluminium
- Remeha Avanta central heating boiler (2020)
- Active and healthy Homeowners Association (VvE), contribution €50 per month
- 1/3 share in the VvE
- Collective building insurance
- Location – Bezuidenhout

Prime location in one of The Hague’s most popular neighborhoods. The lively Theresiastraat with its shops, cafés, and restaurants is within walking distance, as is the Haagse Bos park. Public transport and main roads are easily accessible.

Do you see the potential this property offers? We invite you to take the next step and schedule a viewing.

Kenmerken

Aanvaarding

Prijs
€ 325.000 k.k.
Bijdrage VVE
€ 50
Status
Beschikbaar
Oplevering
In overleg

Bouw

Soort appartement
Portiekwoning, Appartement
Woonlaag
2
Soort bouw
Bestaande bouw
Bouwjaar
1930
Onderhoud binnen
Goed
Onderhoud buiten
Goed

Oppervlakten en inhoud

Woonoppervlakte
77m²
Oppervlakte woonkamer
33m²
Inhoud
280m³

Indeling

Aantal kamers
4
Aantal slaapkamers
2
Aantal badkamers
1
Aantal verdiepingen
1
Voorzieningen
TV-Kabel, Rookkanaal

Energie

Energielabel
D
Isolatie
Gedeeltelijk dubbel glas
Warm water
C.V.-ketel
Verwarming
C.V.-ketel
Ketel
Remeha Avanta (2020, Combi-ketel, Eigendom)

Buitenruimte

Ligging
In woonwijk, Vrij uitzicht
Balkon
Ja

Locatie

[ { "address": "De Sillestraat 157", "zipCode": "2593 TW", "city": "Den Haag", "lat": 52.086667, "lng": 4.3433029, "heading": 0, "pitch": 0 } ]

Plattegronden

De Sillestraat 157, Den Haag floorplan-0

Bekijk verloop van de zon

Uw browser ondersteunt geen WebGL

Interesse in deze woning

Vul uw gegevens in en wij nemen zo snel mogelijk contact met u op voor een afspraak of meer informatie.

Uw bericht is naar ons verzonden. Wij nemen zo snel mogelijk contact met u op.

Er is iets mis gegaan met het versturen van het formulier.
Controleer of u alle velden (goed) heeft ingevoerd en probeer het nog een keer.

recaptcha
reCAPTCHA
PrivacyTerms

Verkoop door vestiging Voorburg
Bel (070) 762 0090

+

Huis verkopen?

Doe de gratis verkooptest!

Direct beginnen